portfolio

 
 

Shunk Residence

Project Scope: Design and coordination of Elevations and Plans.

Contribution: Design development, space planning.

Market: Residential

Architects and Builders: Suzanne Renee Architecture, FWAI Architects, D&S Builders


Hadley Junior High Addition and Renovation

Project Scope: 4 schools: roof replacements and toilet room renovations; two schools additions and renovations

Contribution: as-builts, schematic design through construction administration. Design, Drafting, assistant to project architect

Market: Education

Architect: Wight & Co.


O’Neill Engineered Systems, Inc.

Project Scope: Multiple projects; Miscellaneous noise enclosures, barrier walls, acoustic doors and windows.

Contribution: Drafting; Approval and installation drawing sets, submittal drawings.

Market: Industrial, Acoustic

Engineers: O’Neill Engineered Systems


Edison Elementary School Addition and Renovation

Project Scope: 2 schools: additions and renovations in Elmhurst, IL.

Contribution: Assistant Designer, renderings, drafting, as-builts, schematic design through design development.

Market: Education

Architect: Wight & Co.


Dekalb Home Renovation

Project Scope: single family home renovation in Dekalb, IL.

Contribution: Design Architect, some construction, project management

Market: Residential

Architect: Suzanne Renee Architecture


ZaZa’s Trattoria

Project Scope: mixed use condo and restaurant renovation

Contribution: Project Architect: design development, project management, construction documents

Market: Mixed Use: Restaurant & Residential

Architect: Batir Architecture


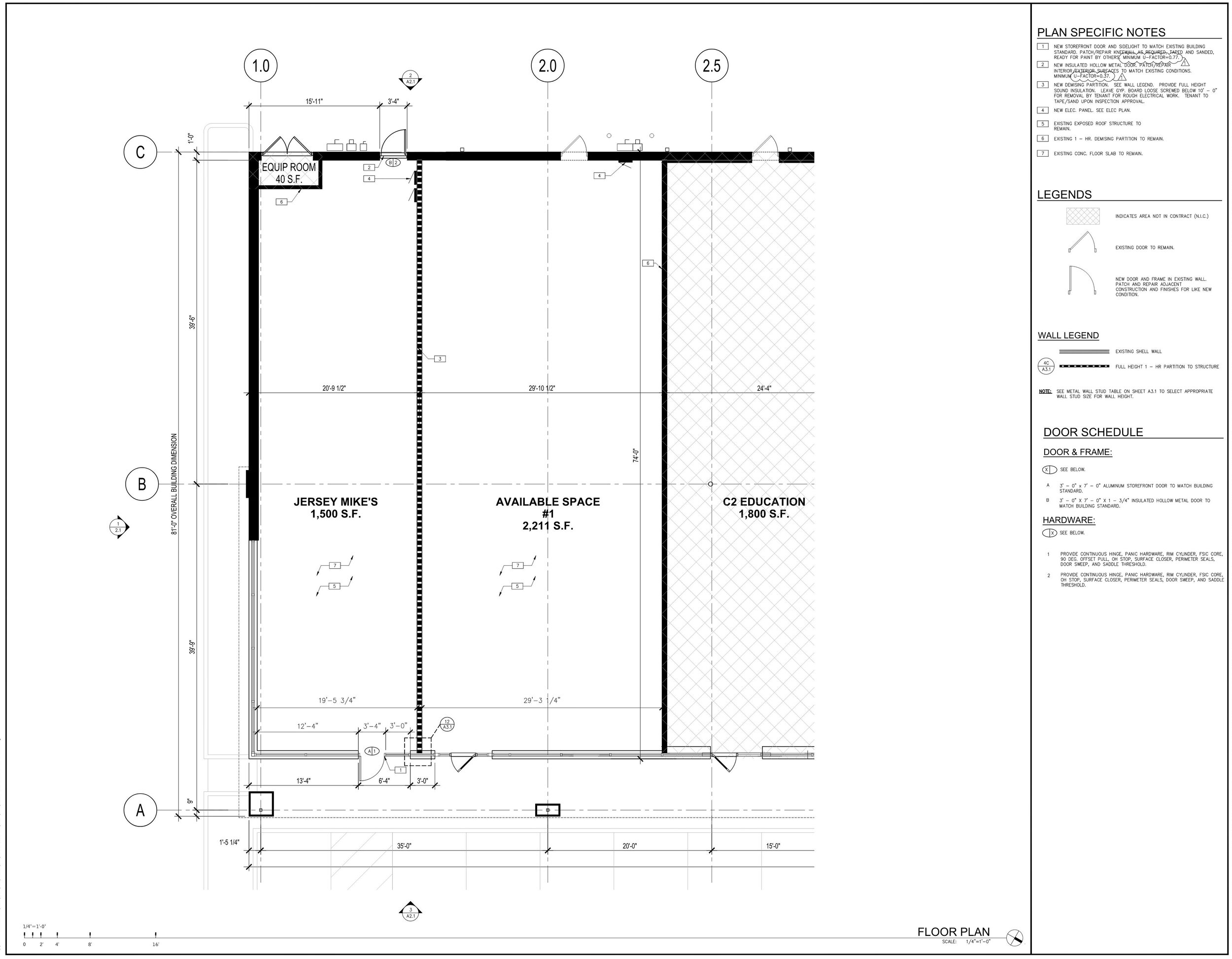
Deerfield Shoppes

Project Scope: strip mall renovation

Contribution: construction documents and plan review

Market: Retail

Architect: Ware Malcomb


Ewers Residence

Project Scope: Foyer and porch addition in Carbondale, IL.

Contribution: schematic design, programming, design options, drafting

Market: Residential

Architect: Suzanne Renee Architecture


Architectural Tectonics

Project Scope: Text book for architecture students

Contribution: Copy and diagrammatic images on existing projects for 2 chapters 

Market: Education

Architect/Educator: Chad Schwartz


113 E. Oak St.

Project Scope: Ground-up urban infill two-story retail.

Contribution: Design development and construction documents.

Market: Retail

Architect: Ware Malcomb